Rahab Refuge Ministries is establishing the first long-term residential safe house in Central New York. It is designed for adult female survivors of exploitation and sex trafficking. “House of Hope” will be a safe environment. Each woman and their child can safely seek a compassionate and loving place of refuge. They can stay for 12 to 18 months, depending on individual need. Here they will have the opportunity to gain skills in a peaceful and encouraging environment.

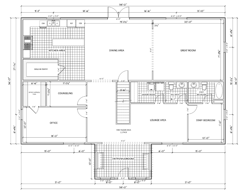
Our blueprints below include housing for four moms and their child. Each will have their own relaxing private 467 square bedroom. This will include a bathroom, large closet, study area and a sitting area they will share with their child. This 6,000+ square foot home will also include a family kitchen, dining area, and living room. It will have a laundry room, a counseling room, an exercise room and a learning center.
(Click on each blueprint to expand the view)




Providing a safe environment for these women will help them heal. Our services will support them in discovering their skills, talents, and abilities. With each donation we can put our vision into reality. With your support and God’s grace this vision is becoming tangible each day. Please donate below.
Donate through PayPal
To donate by check, please mail to:
Rahab Refuge Ministries, Inc.
P.O. Box 103
Wampsville, NY 13163
Rahab Refuge Ministries, Inc. is a 501(c)(3) Tax Exempt Organization.
